kaufen • Felder • Industrial

Industriegebiet - Lakatameia, Nikosia

70.000
Ref: K36712A 📍 Nikosia 🏘️ Lakatameia – Agia Paraskevi 📐 1930 sqm

Bereich

1930 sqm

Typ

Felder

Untertyp

Industrie

Kategorie

Kaufen

Stadt

Nikosia

Nachbarschaft

Lakatameia - Agia Paraskevi

Urkunde

Ja

Mehrwertsteuer

NEIN

Beschreibung

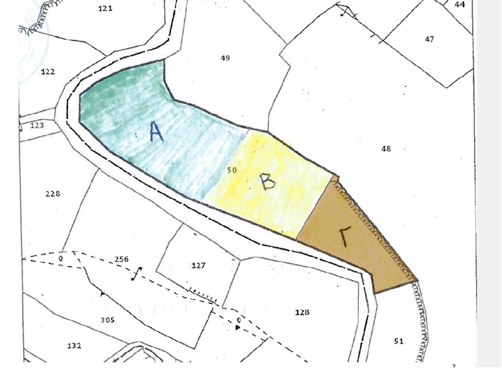
Industrial field (¼ share) for sale in Lakatameia, Nicosia
🏠 Immobiliendetails
🛠️ Industrial land
📐 Layout: Unregelmäßige Form mit flacher Oberfläche

📍 Shared ownership (1/4 share)
📏 Bereiche & Merkmale
📐 Total Field Area: 7,721 sq.m.
📐 Share Area: approx. 1,930 sq.m.
📍 Approx. 250m from nearest registered road
📊 Planungszone
• Zone Βδ2 (Industrial)
📐 Building Density: 50%
🌿 Ausstattungsmerkmale
• ¼ share (southeastern part – Part Γ)
• Vertriebsvereinbarung vorhanden
• Suitable for industrial use or investment
• Located in developing industrial area

📍 Standort
Das Hotel liegt in Agia Paraskevi, Lakatamia
• Approx. 800m from Tseriou Avenue
• Approx. 2.4 km from GSP Stadium

ℹ️ Zusätzliche Informationen
• Gemeinsames Eigentum (nicht vollständiges Eigentum)
• Enclosed plot (no direct road access)

References: K36712A

Standort

Kontaktieren Sie den Agenten

Büro P.

✉️ info@primexrealestate.com

Nachricht senden

Passwort zurücksetzen

Geben Sie Ihre E-Mail-Adresse ein und wir senden Ihnen einen Link zum Ändern Ihres Passworts.

Beginnen Sie mit Ihrem Konto

um deine Lieblingshäuser und mehr zu speichern

Registrieren Sie sich mit Ihrer E-Mail Adresse

Beginnen Sie mit Ihrem Konto

um deine Lieblingshäuser und mehr zu speichern

Durch Klicken auf die Schaltfläche «ANMELDUNG» stimmen Sie den Nutzungsbedingungen und Datenschutzpolitik zu
de_DEGerman